城堡花园破解版(黑屋城堡花园)

城堡花园破解版(黑屋城堡花园)

admin 2025-10-26 资讯 1 次浏览 0个评论

黑屋-城堡花园

黑屋是肯特的一座私人新建房屋,2017年夏天由温彻斯特的建筑师AR设计工作室完成。作为一种当代财产,“黑屋”从肯特的历史和现代建筑中汲取了它的影响。一位退休的工程师和康兰的室内设计师,客户,选择从15世纪都铎的房子,并建立了一个当代梦想的家在他们的花园。

黑屋-城堡花园

建筑概念是在设计团队和客户开始在肯特进行建筑旅游后形成的,目的是从土地和当地环境中寻找灵感。黑色房屋的浮动形式和聚集灵感来自于作家维塔·萨克维尔-韦斯特的故乡西辛赫斯特城堡花园。

黑屋-城堡花园

城堡花园被分割成一系列单独的经历,被修剪过的树篱和风化的红砖墙隐藏在一起。只有从中心塔的写作室才能看到空间和整个设计的连接。

黑屋-城堡花园

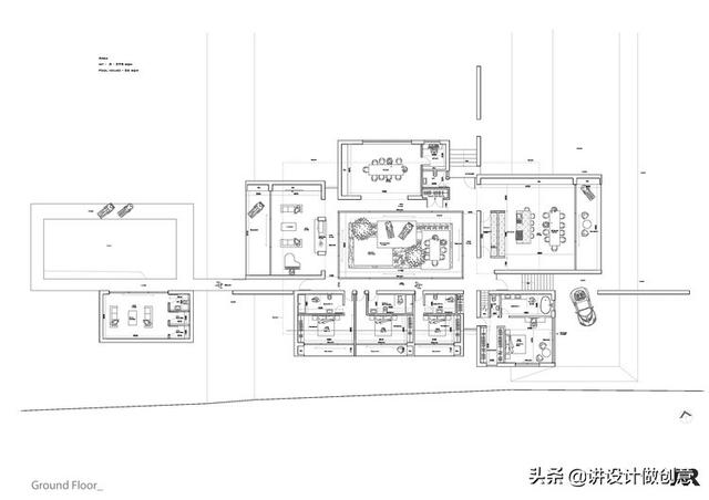
底层平面图

黑屋长方形聚集体按关键的场地轴线、从池到一棵大杨树的视图以及通往该地点的前一条路径分成几块。每个街区都连接到花园的一个不同的方面,从砖塔的屋顶提供最后的连接视图。卷被分开,以建立一个中央庭院,与一个悬臂屋顶,以连接在一起的模块。

黑屋-城堡花园

设计团队还参观了哈斯汀的历史网房和传统的邓吉尼斯黑衣房屋。作为响应,垂直黑色木材覆层被使用始终。参观特纳当代画廊的联锁卷,在马盖特,由大卫奇普菲尔菲尔德建筑师,告诉工作室如何连接低质量的黑木箱和砖塔。

黑屋-城堡花园

每一个街区连接到花园的一个不同的部分,一个旅程围绕着房子的功能是有经验的。旅程从三个入口之一开始,沿着建筑物的轴线设计。厨房餐厅是一间7.3米的悬臂式房间,面向东面,以捕捉清晨的阳光。通过从地板到天花板的滑动玻璃门,该方向提供广阔的视野横跨果园和葡萄园.客厅面向西面的游泳池区域,两个空间相连,供休息和玩耍之用。受马盖特影响的全景水平窗口,将正装餐厅的视野隔在正式的前排草坪上。最后一个方面是卧室,他们提供隐私和隐居的接近林地和后方的房子。

黑屋-城堡花园

马丁·加德纳

这些空间都是由中央庭院连接起来的,这是一个大面积的玻璃区,允许光线和新鲜空气持续穿透房屋,并提供一年四季的室外遮蔽空间。

保存这张照片!

黑屋-城堡花园

在建造了这座房子之后,客户们选择了现代生活,而不是历史,这是一座为他们设计的建筑,以适应他们今天想要的生活方式。其结果是“黑屋”,一系列与他们的花园相关的戏剧性经历,也是当代对该地区的回应。

转载请注明来自Sjyct,本文标题:《城堡花园破解版(黑屋城堡花园)》

每一天,每一秒,你所做的决定都会改变你的人生!

发表评论

快捷回复:

评论列表 (暂无评论,1人围观)参与讨论

还没有评论,来说两句吧...